Produktive Kreditschöpfung 
  Neues Bretton Woods
  Glass-Steagall
  Physische Wirtschaft
  Kernenergie
  Eurasische Landbrücke
  Transrapid
  Inflation
  Terror - Cui bono?
  Südwestasienkrise
  11. September und danach
  Letzte Woche
  Aktuelle Ausgabe
  Ausgabe Nr. ...
  Heureka!
  Das Beste von Eulenspiegel
  Erziehungs-Reihe
  PC-Spiele & Gewalt 
  Diskussionsforum
  Wirtschaftsgrafiken
  Animierte Grafiken
» » » Internetforum mit Helga Zepp-LaRouche « « «
Neue Solidarität
Nr. 17, 28. April 2010

Warum Deutschland die Kernenergie
und den Hochtemperaturreaktor braucht

Von  Dr. Ing. Hans Jürgen Gottwald

Den folgenden Vortrag hielt Dr. Ing. Hans Jürgen Gottwald am 20. März auf der industriepolitischen Konferenz der Bürgerrechtsbewegung Solidarität in Bad Salzuflen.

Ja meine Damen und Herren, Herr Duepmann1 hat mir eine tolle Vorlage gegeben, Steilvorlage sagt man im Fußball. Wir wissen eigentlich, was wir nicht wollen; das ist schon ziemlich klar.

Wenn ich heute über die Frage berichte oder einen Vortrag halte, warum Deutschland die Kernenergie und besonders den Hochtemperaturreaktor braucht, dann ist das ein heißes Thema. Aber ich habe die Aufforderung zu diesem Vortrag erst vorige Woche bekommen und habe dann in der Neuen Solidarität einen Artikel von Herrn Hubert Mohs gelesen - ich weiß nicht wer den auch gelesen hat von Ihnen -, der hat eigentlich alles schon gesagt (Gelächter)2.

Nun will ich mich auch nicht mit fremden Federn schmücken und habe überlegt, was mache ich eigentlich. Ich fasse mal erst kurz zusammen, was Herr Mohs geschrieben hat. Ich mußte sehr in Eile arbeiten, deswegen ist es in der äußeren Form vielleicht nicht so schön, wie bei Leuten mit mehr Elektronik, aber man wird es lesen können.

Die Argumente für die Nutzung der Kernkraft

Wir haben also erstens - schreibt Herr Mohs, aber ich stehe da voll dahinter - wir haben unbegrenzt große Mengen sehr preiswerte Energie, wenn wir Kernenergie benutzen.

Zweitens, die Erzeugungsanlagen haben nur einen geringen Flächenbedarf, das ist also auch ein ganz wichtiges Thema, wenn Sie sich mal überlegen, welche Riesenmengen alleine in der Landschaft kaputtgemacht werden, um Braunkohle abzubauen oder Steinkohle abzubauen. Die wird ja bei uns zwar unter Tage abgebaut, aber in vielen Länden wird die im Tagbau abgebaut, da werden ganze Landstriche umgegraben. Nun will ich nicht sagen, daß das immer eine Katastrophe ist, ich habe viele Jahre in dem Kölner Dreieck gelebt, zwischen Köln, Düsseldorf und Aachen, und ich möchte sagen, die Landschaft hat sich da teilweise verschönt durch den Braunkohleabbau. Da sind Seenlandschaften und Hügellandschaften entstanden. Aber erst mal wird umgebuddelt, gewaltig, und man hat also einen großen Platzbedarf dafür.

Das nächste Argument, weswegen wir Kernenergie brauchen, und vor allen Dingen den Hochtemperaturreaktor, ist die Prozeßwärme. Die meisten Menschen stellen sich heute gar nicht mehr vor, wofür wir überall Energie brauchen. Das fängt schon mit dem Essen, mit der Kleidung, mit den Häusern an. Überall brauchen wir Energie, und für die meisten Menschen ist es so, daß sie über das Herkommen gar nicht mehr nachdenken, das ist eben da, so nach dem Motto: Strom kommt aus der Steckdose. Aber die Industrie braucht für sehr viele technische, thermische Prozesse eben Wärme, und die  Kernenergie ist eigentlich die einzige Energieform - wenn wir wieder bei der Klimadiskussion und dem CO2 sind -, die das CO2-frei macht; es ist eigentlich wie ein Anachronismus.

Die Anwendung ist hier mal kurz angerissen: wirtschaftliche Meerwasserentsalzung, der Schulten-Reaktor, über den ich nachher kurz berichte, der war auch konzipiert, um die Ruhrkohle zu vergasen, eigentlich eine sehr schöne Option, daß man von den erdölproduzierenden Ländern - aber nicht so sehr von denen, sondern von den Konzernen -etwas unabhängiger würde. Radioaktive Isotope für die Medizin, das finden manche greulich, aber heute ist das Gang und Gäbe, daß Krebs zum Beispiel mit Cobalt-60-Strahlern behandelt wird, und so ist es eigentlich ein Segen. In der Materialprüfung ist es heute Standard, daß man zum Beispiel die Blechdicke beim Walzen mit radioaktiven Isotopen mißt, und ich würde sagen, Ihr VW-Golf oder Ihr Audi oder BMW oder was Sie fahren, der hat heute so schöne dünne Bleche, weil man die so kontrolliert gleichmäßig mit diesen Strahlen herstellen kann.

Punkt 5 und 6, Plasmarecycling und Isotopenwirtschaft, das ist ein bißchen Zukunftsmusik, aber wir wollen ja auch an die Zukunft denken. Herr Mohs geht auch auf ethische Aspekte ein, also wer den Artikel mal lesen will, ich kann es nur empfehlen, das macht den Aufsatz in meinen Augen richtig schön. So, das war jetzt Herr Mohs.

Ich sagte, es ist ein heißes Thema, ich diskutiere sehr viel im Freundes- und Bekanntenkreis über die Themen, die wir heute auch auf der Tagesordnung haben. Und wenn es an die Kernenergie geht, dann ist erst mal Schweigen. Und dann, wenn man ein bißchen bohrt: so richtig dagegen sind die meisten nicht, aber die ganzen Abers! Und als erstes kommt dann Tschernobyl, und dann kommt vielleicht noch Harrisburg, und das ist alles so furchtbar gefährlich und der große GAU. Und das sagen die eigentlich ohne jeden Sachverstand.

Nun bin ich auch kein Sachverständiger. Ich bin Ingenieur von meiner Ausbildung. Ich bin Metallurge, mein Beruf ist also die Gewinnung der Metalle und ihrer ersten Verarbeitungsstufen, aber ich habe dieses Thema seit 1960 eigentlich pausenlos verfolgt. Und beim Verfolgen kommen ja dann immer wieder Situationen, wo man sagt: Das verstehe ich nicht, da muß ich mal gucken, und dann stöbert man nach und versucht sein Verständnis auf den neuen Stand zu bringen.

Und ich würde sagen, aus dieser Sicht, was auch Herr Professor Malberg sagt: daß wir völlig unabhängig sind. Herr Duepmann sagte auch „Ich spreche für keine Industrie“ - ich spreche auch für keine Industrie, ich bin ein reiner Privatmann. Aber aus dieser Situation heraus kann ich, glaube ich, auch objektiv berichten. Und am Ende stelle ich Ihnen dann eine Frage, die Sie für sich selbst beantworten sollen.

Ja, also dieses aus dem Bauch heraus, ohne eigentliches Wissen: ich sag dann immer, ich mache euch keinen Vorwurf, daß Ihr das nicht wißt, aber ich mache den Leuten einen Vorwurf, die sich gegen das Wissen sträuben. Ich höre immer, sei doch ruhig, ich will da gar nichts davon hören, aber ich habe ja meine Meinung. Ein vertrauter Freund von mir ist Theologe, ich sage dem immer: „Du hast ja deinen Glauben, warum willst du etwas wissen?“ Und so wie Sie auch, Herr Professor Malberg, sagten: ja es ist so, also die Leute glauben das. Und die wollen einfach nichts dazu wissen, weil sie ja sonst ihren Glauben verlieren müßten, da müßten sie nachdenken, und dann verlieren sie ihren Glauben - das mag man nicht, man hat ja seine Überzeugung (Gelächter) ... Ja, danke, Sie glauben gar nicht, wie mir das gut tut, denn ich stehe zu Hause manchmal auf sehr schmalem Brett (Gelächter).

Gut. Ich habe mir jetzt gesagt, damit diese Leute ihre Angst verlieren - und hier sind viele junge Leute, die nachher in die Politik gehen und mit den Leuten diskutieren wollen -, stelle ich einfach mal mit einfachen Worten dar, wie Kernenergie funktioniert, denn mein eigentliches Thema war ja weg, das hat ja Herr Mohs schon beantwortet.

Und ich erzähle Ihnen über die Sicherheiten, denn das ist sicherlich ein Problem; ich möchte auch nicht, daß neben mir eine Atombombe explodiert; man muß verstehen, wenn das keiner möchte. Also, ich erzähle Ihnen, wie das funktioniert und welche Sicherheiten da drin sind, und am Ende ist dann wieder die Frage, „Ich glaub das alles nicht“, da habe ich dann die passende Antwort.

Ich weiß nicht, wer ist hier eigentlich aus einem technischen oder naturwissenschaftlichen Beruf, wenn ich mal die Frage stellen darf? Meistens ältere Herren oder mittleren Alters - ja, für die sind das alles alte Kamellen. Aber Sie erlauben mir, daß ich trotzdem mal von ganz vorne anfange.

Das Atom und seine Isotopen

Also es fängt mit dem Atom an. Und natürlich sind das vereinfachte Darstellungen. Ich sage Ihnen hier, ein Atom besteht aus drei Teilen. Tatsächlich kann man die wieder unterteilen, und ein Atomphysiker, für den sind das lange nicht drei Teile, diese Leute sind bei 70 oder 80 Teilen. Aber das ist so, wenn Sie ein Auto haben; auch wenn Sie nicht Autos konstruieren, dann wissen Sie, das hat ein Fahrgestell, das hat eine Kabine, einen Motor, und damit kommt man erst mal zurecht. Und so ähnlich ist das mit den Atomen. Also Atome bestehen im Grunde aus drei Teilen, und denen kann man nur zwei Eigenschaften zuordnen, nämlich Masse und Ladung. Das Proton hat beides, es hat Masse und es hat Ladung, und diese Ladung nennen wir positiv - einmal legt man das so fest und dann muß man dabei bleiben. Das Neutron hat auch Masse, aber keine Ladung, und das Elektron hat keine Masse, aber Ladung, negativ.

Abb. 1: Aufbau des Helium-Atoms

So, nun kann man als Fachmann sagen „das stimmt ja wieder nicht“, das Elektron hat doch Masse. Ich sage immer, das ist soviel wie ein Regentropfen auf Ihrem Auto - das ist gar nichts, im Vergleich zu einem Proton oder Neutron können wir das vernachlässigen.

Nun müssen wir noch ein bißchen weiter über die Atome reden.

Ich habe hier mal ein Helium-Atom aufgezeichnet (Abb. 1). Das hat im Kern zwei Protonen und zwei Neutronen, das ist die ganze Masse, wenn wir mal den „Regentropfen“ vergessen. Und auf einem großen Abstand darum sind zwei Elektronen. Man muß sich die Größenordnung so vorstellen: Der Kern ist eine Erbse, die liegt auf dem Fußballfeld, und außen herum auf der Aschenbahn sausen die Elektronen; es ist eher noch größer und dreidimensional.

Isotope (Nuklide):

P1 = P2:   gleiche Protonenzahl

e1  = e2:   gleiche Elektronenzahl

N1 ≠ N2:   unterschiedliche Neutronenzahl


Beispiele unterschiedlicher Isotopen verschiedener Elemente

Uran (U 92227-240)
natürliche Zusammensetzung:

U 92238,03 => 92 P/146 N

wichtige Isotope:

U 92235 => 92 P/143 N
U 92233 => 92 P/141 N

Plutonium (Pu 94232-246)
natürliche Zusammensetzung:

Pu 94244 => 94 P/150 N

Thorium (Th 90213-235)
natürliche Zusammensetzung:

Th 90232,04 => 90 P/142 N

Die Protonenzahl macht das Element aus. Jede neue Protonenzahl macht ein neues Element. Und die Elektronenzahl ist im Neutralfall dieselbe, nur in Bindung kann sich das mal verändern. Aber die Neutronenzahl, die die Atome brauchen, damit der Kern nicht auseinander fliegt, weil gleiche Ladungen sich ja abstoßen, ist etwas variabel.

Wenn man jetzt unten rechts in der Ecke guckt, hier steht Element 2, weil das Helium ja zwei Protonen hat und zwei Neutronen, das müßte in der Masse vier machen, und das steht dann in dem periodischen System, was Sie vielleicht noch von der Schule kennen. Da steht aber 4,002, und das liegt daran, daß es Isotope gibt, und ich habe hier mal ein paar Isotope aufgeführt. Isotope oder Nuklide sind Atome der gleichen Protonenzahl, also von Helium zum Beispiel mit der Protonenzahl 2, aber mit unterschiedlicher Neutronenzahl, also meinetwegen 3 oder 4 oder vielleicht 1; die sind zwar im chemischen Verhalten gleich, haben aber unterschiedliche Masse.

Das Problem zum Beispiel beim Anreichern von Uran-235 ist, daß Uran-235 die gleichen chemischen Eigenschaften hat wie Uran-238, was das häufigere oder ganz überwiegende ist,  und man kann sie chemisch nicht trennen. Man muß sie in eine andere Form bringen, indem man sie in Uranhexafluorid umwandelt; das ist gasförmig und in Zentrifugen fliegt dann das schwerere weiter raus, das kennen Sie von der Milchzentrifuge; das leichtere bleibt innen, und in ganz vielen Stufen kann man das dann anreichern.

Also oben steht das Prinzip, Protonenzahl ist gleich bei Isotopen und Nukliden - Nuklide ist nur ein anderen Wort für Isotope -, die Elektronenzahl ist auch gleich, aber die Neutronenzahl ist verschieden. Und jetzt habe ich mal ein paar Isotope aufgezeigt, die wir vielleicht brauchen. Uran ist ja der Haupt-Kernbrennstoff, den man benutzt, und das hat Isotope. Es hat immer 92 Protonen, aber eine ganz unterschiedliche Anzahl von Neutronen, nämlich in der gesamten Masse von 227 bis 240, da sind also 14 verschieden Massezahlen. Wenn man in der natürlichen Zusammensetzung die Massezahl bestimmt, dann kommt man auf 238,03. Diese Kommastelle ist immer ein Zeichen dafür, daß es da einige Isotope gibt. Natürliches Uran hat also 92 Protonen und ungefähr 146 Neutronen, das Uran-235 hat dann auch wieder 92 Protonen, aber genau 143 Neutronen. Eine weitere Rolle spielt das Uran-233 mit 92 Protonen und 141 Neutronen.

Wir kennen auch im Kernkraftwerk das Plutonium, das immer ein bißchen mit anfällt. Das liegt daran, daß nichtmoderierte Neutronen auf das Uran-238 treffen, welches sich dann zu Plutonium umwandelt. Plutonium kann auch ein Brennstoff im Kernkraftwerk sein. Ich habe also mal dieses Element mit reingenommen, es hat die natürliche Zusammensetzung 244 als Masse, mit 94 Protonen, aber es hat Isotope von der Massenzahl 232 bis 246. Und dann gibt es in unserem Bereich auch das Element Thorium mit der Protonenzahl 90 und Massenzahlen von 213 bis 235. Da ist einiges los und in Bewegung.

In diesem Beispiel habe ich jetzt diese großen Atome aufgeführt, und das erste war ja das Helium-Atom, das war sehr klein. Insgesamt haben wir etwa 100 Elemente, von der Protonenzahl 1 beim Wasserstoff bis in die Größenordnung von 100. Es gibt auch einige, die ein bißchen drüber liegen, aber das sind Elemente, die teilweise künstlich hergestellt werden; also mit Uran mit der Ordnungszahl 92 und Plutonium mit 94, da sind wir schon fast ganz am Ende. Und diese schweren Kerne sind nicht so sehr stabil, sie können zerfallen, und das benutzt man eben, um Energie zu erzeugen. Ich glaube, soweit ist das auch Allgemeinwissen.

Abb. 2: Schema einer Kernspaltung

Ich zeige jetzt ein Bild, wie das im Prinzip funktioniert (siehe Abb. 2). Wir benutzen in den Kernkraftwerken, die in Deutschland in Betrieb sind, überwiegend das Uran als Brennstoff. Das ist also hier das Uran-Atom, das wird von einem Neutron getroffen. Nun fragen Sie, woher kommt das erste Neutron? Das muß man eigentlich nicht fragen, die fliegen überall herum, und wenn wir den ersten Zerfall haben, kriegen wir immer neue Neutronen, also zum Starten ist das kein Problem.

Dieses Neutron trifft auf das Uran-235 und vergrößert dieses um eine Masseneinheit zum Uran-236. Das ist aber wieder instabil, möchte so nicht bleiben und zerfällt in zwei Zerfallsprodukte - es gibt auch andere Zerfallsprodukte, hier ist es mal so dargestellt -, in Krypton und in Barium. Und was jetzt wichtig ist, dabei werden wieder drei Neutronen frei. Wenn Sie also die Massen alle zusammenzählen von Krypton, Barium und den drei Neutronen, dann müßten Sie wieder auf 236 kommen.

Diese freien Neutronen müssen jetzt wieder ein neues Uran-235 finden, damit der Prozeß weitergeht. Wenn sie keines finden, bleibt die Reaktion stehen; es wird eine Mindestmasse gebraucht, damit mindestens ein freigesetztes Neutron ein Uran-235 findet. Diese Masse nennt man die kritische Masse.

Moderatoren

Neutronen haben aber noch eine andere Eigenschaft, sie sind nämlich sehr schnell, und weil die zu schnell sind, reagiert das Uran-Atom nicht richtig darauf. Das ist so, als wenn Sie mit der Gewehrkugel einen Wackelpeter zerschießen wollen: Bevor der das merkt, ist die Kugel durch, dann zittert er noch ein bißchen und steht wieder so da. Das muß man langsamer machen (Gelächter) - ich finde das auch komisch. Man muß die Geschwindigkeit der Neutronen herabsetzen, das nennt man moderieren. Und zum Moderieren eigenen sich drei Stoffe: leichtes Wasser, schweres Wasser und Graphit.

Wenn Sie fragen, was schweres Wasser ist: Da ist das Wasserstoffisotop mit der Masse zwei drin. Wasser besteht ja aus einem Sauerstoff-Atom und aus zwei Wasserstoff-Atomen (H2O), Wasserstoff hat normalerweise die Masse 1 und nur ein Proton als Massenträger. Aber es gibt eben auch einige Atome mit einem zusätzlichen Neutron, die haben dann die Masse 2 und werden Deuterium genannt. Im Krieg wurde das aus Norwegen geholt, als man mit der Kerntechnik experimentierte. Also leichtes Wasser, schweres Wasser und Graphit. Graphit ist eine halbkristalline Art von Kohlenstoff.

Das Wasser hat noch eine Eigenschaft, von der die meisten Menschen nichts wissen; deswegen haben sie auch wieder ein Vorstellungsproblem mit der Sicherheit: das Wasser hat eine kritische Temperatur, nämlich von 374°C und dabei ist ein Druck von 241 bar.

Kritisch klingt schon wieder so gefährlich, ist es aber nicht, das ist einfach eine Temperatur, über der eine Flüssigkeit mit noch soviel Druck nicht mehr flüssig bleibt. Sie können also auf das Wasser soviel Druck geben, wie Sie wollen, es wird einfach nicht mehr flüssig über den 374 Grad, sondern bleibt in jedem Fall gasförmig.

Vielleicht weiß hier einer: das Gas in einem Feuerzeug ist flüssig, aber der Sauerstoff in der Sauerstofflasche ist bei 200 bar immer noch nicht flüssig, weil der Sauerstoff über der kritischen Temperatur liegt. Und das Feuerzeug - was haben wir da drin, Butan? - das ist unter der kritischen Temperatur und bei erhöhtem Druck flüssig. Das brauchen wir noch.

Wärmetransport

Wir haben jetzt im Grund gesehen, wie der Kernzerfall geht. Wir haben das Atom, welches zerfällt, wir haben die Neutronen, die das auslösen, wir haben die Moderierung, und jetzt brauchen wir noch etwas, was die Wärme transportiert; wir wollen ja Wärme erzeugen, wir wollen diese Wärme in eine Wärmekraftmaschine bringen, die soll dann den Generator antreiben, um Strom zu erzeugen.

Und um Wärme zu transportieren, ist Wasser wieder ein sehr geeigneter Stoff. Wasser hat eine sehr große spezifische Wärme, das heißt, in einer kleinen Menge Wasser kann man viel Wärme unterbringen, und das können Sie überall merken, z.B. in der Meeresströmung; das Meer beherrscht ziemlich stark das Wetter. Wir hätten hier in Westeuropa viel kälteres Wetter, wenn wir nicht den warmen Golfstrom vor der Küste hätten, das nur als Beispiel.

Aber wir können hier natürlich Wasser nur unterhalb der kritischen Temperatur (374° C) zum Wärmetransport nehmen. Wenn wir darüber gehen wollen, dann gibt es zwei weitere Methoden. Man kann flüssiges Metall nehmen, das wird im schnellen Brüter zum Beispiel benutzt, als flüssiges Natrium, oder man kann Gase nehmen. Aber Gase können natürlich nicht so viel Wärme aufnehmen, da muß man ziemliche Stürme erzeugen, damit man genug Wärme transportieren kann.

Das Wasser kann unterhalb der kritischen Temperatur zweierlei: Es kann moderieren, und es kann Wärme transportieren, und das ist einer der großen Sicherheitsaspekte in den bei uns betriebenen Kernkraftwerken. Wenn wir soweit sind, dann fehlt uns eigentlich nur noch eine Einrichtung, wie wir die pro Zeiteinheit erzeugte Wärmemenge regulieren können.

Herr Duepmann erzählte heute morgen von Spannungsschwankungen und Stromschwankungen im Netz, die Kraftwerke müssen sich da anpassen können. Das tut ein Atomkraftwerk zwar bei kurzfristigen Schwankungen nicht, dafür ist es viel zu träge, aber es muß regelbar sein, um langfristig einmal mehr und einmal weniger Energie und damit Strom zu erzeugen. Das machen wir mit Neutronenfängern. Wenn ich mehr Neutronen wegfange, dann werden weniger Uran-235-Atome getroffen, die zerfallen, und es wird weniger Wärme erzeugt.

Diese Neutronenfänger sind bei uns üblicherweise Cadmium und Bor. Cadmium ist ein Metall, das kam heute morgen auch schon mal vor bei den Solarzellen, und Bor ist ein Halbmetall. Wer ein bißchen Chemieunterricht hatte, der kennt die.

Damit haben wir eigentlich alles zusammen.

Abb. 3: Die Brennelement eines typischen Kernkraftwerks sind aus zahlreichen Brennstäben zusammengesetzt

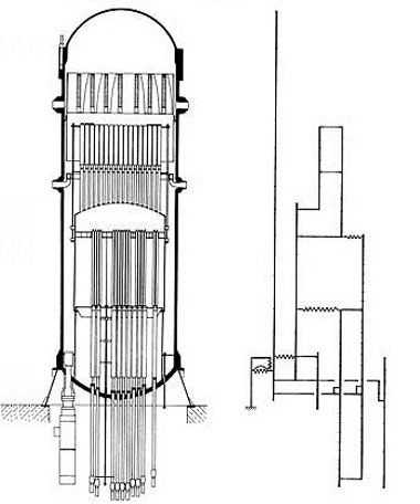
Abb. 4: Schema eines Reaktordruckbehälters

Abb. 5: Schema eines Siedewasserreaktors

Abb. 6: Schema eines Druckwasserreaktors

Abb. 7: Das Kernkraftwerk Olkiluoto in Finnland ist derzeit das einzige im Bau befindliche neue Kernkraftwerk in Europa

Barrieresysteme

Beim technischen Aufbau eines Atomkraftwerks wird immer von sogenannten Barrieresystemen geredet. Das Barrieresystem ist wichtig, man versucht, möglichst viele Barrieren aufzubauen zwischen den radioaktiven Stoffen und der Umwelt, weil wir alle keine Radioaktivität in größeren Mengen um uns haben wollen.

Und die Barrieren in unseren Kernkraftwerken sind also erst mal die Tablette selber. Wir haben meistens Urandioxid als Brennstoff, welches in Keramikmassen eingebettet ist; dies sind Tabletten, etwa so groß wie mein letztes Daumenglied. Da kann das Uran nicht heraus, es sei denn, man zerstört sie.

Diese Tabletten stecken in Röhren. Diese Röhren sind mit sehr viel Aufwand und viel Materialprüfung gasdicht hergestellt.

Die Röhren sind zu Bündeln zusammengefaßt, sogenannten Brennstoffelementen (Abb. 3), welche vom Reaktor, einem Druckgefäß, umschlossen sind. Jetzt sind wir bei der dritten Barriere.

Das ganze wird in einem Sicherheitsbehälter (Abb. 4), in unseren Kraftwerken meistens eine Stahlkugel, untergebracht, und dann haben wir als letzte Barriere zu unserer Umwelt noch diese charakteristische Betonkuppel, die Sie alle schon gesehen haben, wenn Sie mal an einem Kernkraftwerk in Deutschland vorbeigefahren sind.

Ein weiteres Sicherheitselement besteht in den Regelstäben, die Cadmium oder Bor enthalten. Im Betriebszustand werden sie elektrisch oberhalb der Brennelemente gehalten, bei Stromausfall fallen sie durch ihr Eigengewicht hinunter zwischen die Brennelemente, wo sie die Reaktion durch Einfangen der Neutronen beenden.

Wir haben in Deutschland noch zwei verschiedene Typen von Kernkraftwerken in Betrieb, und zwar Kernkraftwerke mit Druckwasserreaktor und mit Siedewasserreaktor, das haben bestimmt die meisten auch schon gehört. Was ist der Unterschied?

Bei beiden Typen werden die Brennelemente im Druckbehälter von Wasser umspült, welches gleichzeitig moderiert und die entstandene Wärme transportiert.

Beim Siedewasserreaktor (Abb. 5) wird das erhitzte Wasser bei ca. 70 bar schon teilweise im Druckbehälter verdampft, es sammelt sich im oberen Teil des Behälters als Dampf, der direkt zu den Turbinen geführt wird.

Beim Druckwasserreaktor (Abb. 6) bleibt das erhitzte Wasser bei höherem Druck - ca. 160 bar - flüssig und wird flüssig und erhitzt aus dem Druckbehälter zu einem Wärmetauscher geführt, wo es in einem räumlich getrennten Sekundärkreislauf Dampf erzeugt. Dieser Sekundärdampf versorgt die Turbinen mit Energie.

Der Unterschied ist also der, daß der Druckwasserreaktor im eigentlichen Kernreaktor nur Wasser hat, und der Siedewasserreaktor davon einen Teil verdampft. Beide Kraftwerke arbeiten ungefähr bei 350°C.

Jetzt habe ich hier noch ein Bild von einem Atomkraftwerk, das voriges Jahr in Finnland in Betrieb gegangen ist, nur damit ich auch mal ein neueres Bild zeige. Meine Bilder sind alle ungefähr 20 Jahre alt, aber in den letzten 20 Jahren hat sich ja auch in Deutschland nicht viel getan.

Was geschieht, wenn die Kühlung ausfällt?

Was kann nun schlimmes passieren, weil wir immer bei den Ängsten sind? Die größte Angst der Leute ist, daß irgendwie die Wärme vom Reaktor nicht abgeführt wird, weil zum Beispiel der Strom ausfällt und die Pumpen nicht laufen. Dann wird das Wasser mit seiner Wärme nicht vom Reaktor abgeführt, der Reaktor steigt in der Temperatur, der arbeitet einfach weiter. Und dann haben die meisten Menschen so die Vorstellung, „Und dann knallt’s! - irgendwo“, und dann ist man in der Vorstellung schon in Tschernobyl.

Da sind jedoch die vielen Barrieren davor. Also erst mal sind da die Steuerstäbe. Dann gibt es Druckentlastungssysteme. Dann gibt es in unseren Kernkraftwerken viermal Ersatzpumpen, also wenn die Pumpe kaputt geht, dann sind da noch vier Ersatzpumpen, die also auch unterschiedlich geschaltet sind, mit unterschiedlichen Ventilen, falls ein Typ kaputtgeht, daß der andere noch funktioniert, und natürlich vier Notstromdiesel, falls der Strom wegbleibt. Da sind also ganz viele Sicherheitsvorrichtungen eingebaut, so daß da schon von der Wahrscheinlichkeit her - die Leute rechnen ja immer mit Wahrscheinlichkeiten - eigentlich nicht viel passieren kann.

Aber ich habe mal über diesen kritischen Punkt des Wassers nachgedacht und selber gerechnet: Wenn also unsere Kraftwerke bei 350° C arbeiten und alles „verreckt“, nichts funktioniert mehr, was passiert denn dann? Gut, dann läuft der Reaktor weiter, die Kettenreaktion geht weiter, es wird weiter Wärme erzeugt, und die Temperatur steigt von 350° C auf 374° C, und da ist das Wasser gasförmig. Und dann bleibt die Reaktion stehen, weil das Wasser nicht mehr moderiert!

Und um nun auch ganz sicher zu sein - ich spreche also nicht für die Kernenergielobby, ich bin keiner von der Industrie -, wollte ich es jetzt selber wissen und habe mal überlegt: Wie hoch ist denn der Druck, welche Belastungen liegen jetzt auf dem Druckreaktor, hält der das noch aus.

Bei 374°C hat das Wasser 221 bar Druck. Und ich habe aus dem Lexikon für Kernfragen herausgesucht: Ein Druckwasserreaktor von 1300 Megawatt hat einen Innendurchmesser - der Reaktorkern - von 5 m, einen Außendurchmesser von 5,50 m, also eine Wandstärke von 25 cm und 221 bar Druck. Ich habe mit der Kesselformel errechnet, welche Kräfte in den Wänden herrschen, welcher Zugkraft das entspricht und welche Spannung sich daraus ergibt.

Da komme ich auf einige 220 N/mm2 - ja, fast wie der Druck, das ist aber Zufall - auf 221 N/mm2. Man muß natürlich berechnen oder berücksichtigen, daß wir nicht Raumtemperatur haben; also 221 N/mm2 ist weniger als die Festigkeit von einem Massenstahl, der hat so 370 N/mm2, aber bei 400°C nimmt natürlich die Festigkeit ab.

Wenn man in den Werkstoffbüchern blättert, muß man die sogenannte Streckgrenze berücksichtigen, das ist die Verformung, die ein Werkstoff gerade noch unter Last haben darf, damit er auch wieder zurückkommt, damit er nicht dauernd beschädigt bleibt. Da ergibt sich für einen warmfesten Stahl eine Streckgrenze von 440 N/mm2, bei 400° C. Die Festigkeit ist damit ca. doppelt so hoch wie die extremste Belastung. Also es kann eigentlich nichts passieren.

Was wird aus den Zerfallsprodukten?

Jetzt bin ich aber doch nicht ganz ehrlich gewesen. Denn die Kettenreaktion bleibt zwar stehen, das ist für mich eine feste Erkenntnis, da passiert nichts mehr. Aber in den Brennstofftabletten, in den Stäben, da sind natürlich auch noch die Zerfallsprodukte und Restwärme.

Sie müssen sich das so vorstellen: Wenn Sie mit Ihrem Auto auf der Autobahn fahren mit 170 km/h oder was Sie so fahren, und auf einmal ist irgendwas los - die Mutter muß mal wo hin -, dann fahren Sie schnell auf den Parkplatz zur nächsten Raststätte und stellen den Motor ab. Da geht auf einmal das Kühlgebläse wieder los, obwohl Sie gar nicht mehr fahren, weil im Motor noch Wärme ist, die noch gar nicht am Kühler war, die sogenannte Restwärme. Die steckt noch drin, die muß weg.

Und es steckt noch ein klein bißchen mehr drin, es steckt nämlich auch noch Wärme drin von den Zerfallsprodukten, in unserem obigen Beispiel von dem Barium z.B.

Diese Restwärme muß noch vernichtet werden. Und dafür stehen wieder in unseren Reaktorbehältern vier Flutbecken zur Verfügung, falls eines nicht geht und das zweite verstopft ist und das dritte versumpft ist, dann schafft es das vierte (Gelächter).

Wenn die Menschen den großen Gau befürchten, dann argumentieren sie eben: „Du kannst ja sagen, was Du willst,“ - erzählen sie mir immer - „aber wenn das und das und das alles passiert; es ist ja sozusagen rational denkbar; es wird nicht eintreten, aber denkbar ist das, und wenn es denkbar ist, dann wollen wir das auch nicht!“ Ja, so ist die Argumentation.

Aber was wir an Werten dagegen verlieren durch solche Gedankenspiele, haben wir zum Teil heute morgen schon gehört. Ich habe natürlich jetzt ziemlich vereinfachende Darstellungen gemacht, zum Beispiel vom Kernzerfall; das sind Dinge, die in unvorstellbarer Kleinheit und dafür in unvorstellbarer Menge ablaufen; aber die Zusammenhänge sind so, die Vorgänge gehorchen physikalischen Gesetzen, die nicht relativierbar sind.

Und wenn Sie es nicht glauben wollen, dann sage ich Ihnen, versuchen Sie sich mal von ihrem Glauben zu  trennen; aber hier ist so eine Gruppe von Menschen, die tut das auch. Und machen sie sich klug. Sie können im Internet nachlesen, die Kraftwerke haben Informationszentren, Sie können dort Besichtigungen machen, es gibt jede Menge Literatur, und da können Sie alles nachlesen.

Frau Fimmen fragte mich vorige Woche, ob ich ein bißchen davon erzählen kann, und dann habe ich einfach so, was ich im Arbeitzimmer liegen habe - das ist alles nicht mein Beruf, sondern was mich interessierte - einmal zusammengetragen, habe gedacht, das ist alles ein bißchen alt, zwanzig Jahre etwa ist das her. Aber dann habe ich mir auch gesagt, es hat sich ja in Deutschland nichts weiter getan.

Aber ich kann noch einen Wink geben: Auch in der Zeitschrift Fusion, die ich regelmäßig beziehe, sind sehr gute Artikel zu diesem Themenkreis, gut lesbar, auf naturwissenschaftlicher Basis und mit umfangreichem Register. Man muß nur wollen, um die Dinge zu begreifen.

Der Kugelhaufenreaktor

Jetzt kommen wir noch zu etwas ganz anderem, nämlich zum Kugelhaufenreaktor. Den haben wir ja nicht, wir hatten ihn.

Abb. 8a: Brennstoffkugeln für den Kugelhaufenreaktor

Abb. 8b: Aufbau der Brennstoffkugeln

Abb. 9: Schema eines Hochtemperaturreaktors

Unsere in Betrieb befindlichen Kernkraftwerke arbeiten wegen des kritischen Punktes des Wassers bei 350° C, und höher geht es nicht, weil das Wasser darüber gasförmig ist, dann moderiert es nicht mehr, da trägt es auch nicht so viel Wärme. Dann muß man eben ein anderes Prinzip finden. Und als ich ein junger Mann war, in den sechziger Jahren, hat der Professor Schulten in Jülich in der Kernforschungsanlage den Schulten-Reaktor oder Kugelhaufen-Reaktor entwickelt...

Wir sprachen von dem Barrieresystem. Sie haben gesehen und gehört, was man alles in den Wasserreaktoren machen muß, um Barrieren aufzubauen, damit die radioaktiven Stoffe nicht rauskommen. Beim Kugelhaufenreaktor haben Sie das in einer Kugel. Ich habe in den sechziger Jahren, weil wir von der Aachener Technischen Hochschule immer Kontakt mit Jülich hatten - Jülich war eigentlich ein Außeninstitut von Aachen -, die Entwicklung verfolgt. Ich hatte auch die Brennstoffkugeln in der Hand, die sind wirklich so wie Bocciakugeln oder wir sagen immer wie Tennisbälle; ich weiß nicht genau, wie groß Bocciakugeln sind, hier steht 60 Millimeter, ungefähr stimmt das.

Gut, diese Kugeln (Abb. 8a und 8b), die sind so aufgebaut: Wir haben erst mal Brennstoffkügelchen, die bestehen aus Uran-Dioxid oder man kann auch Thorium-Dioxid zumischen, das ist eine spätere Entwicklung. Diese Kügelchen sind eingepackt in pyrolytischen Kohlenstoff - das ist wieder so ein Fachausdruck, pyrolytisch heißt, der Kohlenstoff wird aus der Gasphase auf den Kügelchen abgeschieden, dann ist er sehr dicht, darauf kommt es dann immer an.

Und es sind Schutzschichten von Silizium-Karbid. Ich habe viel mit Silizium-Karbid gearbeitet, wir haben Röhren und Stäbe daraus gemacht und Strom durchgeleitet als Ofen, als Röhrenofen. Das Material hält locker 1600 Grad aus und mehr. Wir haben es bei 1600 Grad im Betrieb gehabt. Es ist chemisch sehr stabil. Deshalb ergibt es eine sehr dichte und stabile Beschichtung, die auch noch mechanisch ziemlich fest ist, also alles große Vorteile.

In mehreren Schichten von Kohlenstoff und Siliziumkarbid wird das eigentliche Brennstoffkügelchen eingekapselt. Davon kommen dann viele in eine Kugel von der Größe eines Bocciaballs oder Tennisballs. Das ist dann eine Brennstoffkugel, oder wir würden bei den anderen Kernreaktoren sagen, ein Brennelement.

Diese Kugeln sind so fest, daß man sie ruhig herumwerfen oder abkippen kann, und sie sind auch so dicht, daß die radioaktiven Stoffe nicht herauskommen können.

Das heißt, wenn der Kernbrennstoff darin abgebrannt ist, bleiben die Reste drinnen und verbreiten sich auch nicht, wir könnten sie eigentlich in ein Loch kippen. Man muß natürlich gucken, daß immer noch ein bißchen Strahlung rauskommt, und dagegen muß man sich schützen. Aber man hat nicht diese Probleme, wie wir sie im Moment in überreichlichem Maße von der Asse hören; manches davon ist richtig, vieles im Zusammenhang verdreht, und alles politisch fast hysterisch ausgeschlachtet. Man fragt sich: Warum gerade jetzt - die Fakten sind schon lange nicht mehr neu. Jedenfalls gäbe es diese Probleme mit dem Kugelhaufenreaktor nicht.

Nun, diese Kugeln werden kontinuierlich in den eigentlichen Reaktor gegeben, der mit einer Schüttung von diesen Kugeln gefüllt ist. Diese erzeugen durch den Kernzerfall in ihrem Innern die Wärme, bis sie mehr oder weniger verbraucht sind, und können dann unten abgezogen werden. Das ganze geht kontinuierlich, und die erzeugte Temperatur liegt bei etwa 900 Grad; ich habe mehrfach gelesen, daß auch 1000 Grad erreicht werden können...

Bei solchen Temperaturen kann man natürlich nicht mehr mit Wasser als Wärmeträger arbeiten. Als „Wärmetransporteur“ dient in diesem Fall Helium-Gas. Helium ist ein Edelgas, wenn da mal was austreten sollte, passiert nicht viel. Aber man muß natürlich einen ziemlichen Sturm erzeugen, man muß viel kaltes Gas durchleiten, um die erzeugte Wärme aufzunehmen und zu transportieren.

Aber durch die Kugelsymmetrie hat man auch definierte Löcher. Wenn Sie zum Beispiel irgendwas zerklopfen und schütten das auf einen Haufen, dann haben Sie großes Korn und kleines Korn, das kleine Korn sitzt zwischen dem großen Korn, dann haben Sie nur wenig Löcher dazwischen. Aber hier haben Sie eine Kugel wie die andere, sechs Zentimeter, mit definiertem Durchgang, der überall sehr gleichmäßig ist und deswegen gut durchströmt werden kann. Das aufgeheizte Helium erzeugt mit seiner Wärme über einen Wärmetauscher überhitzten Wasserdampf, dieser treibt eine Turbine, wie wir das schon kennen. Das ist die ursprüngliche Konzeption.

Die Vorteile des HTR

Was ist der große Vorteil?

Ich habe die Vorteile mal bißchen geteilt in theoretische oder physikalische, und technische.

Physikalisch: Der Prozeß ist inhärent sicher, das ist das entscheidende, und inhärent sicher heißt, daß dieser Reaktor nicht durchgehen kann. Er hat einen sogenannten negativen Temperaturgradienten, d. h., je höher die Temperatur ist, desto schlechter läuft der Zerfall. Er bleibt einfach irgendwo über 1000° C stehen und würgt sich selber ab.

Ich habe in der Fusion gelesen, daß die Jülicher das zwei oder dreimal probiert haben. Sie haben die ganze Wärmeabfuhr einfach abgeschaltet, also den Helium-Kreislauf gestoppt. Sie haben die Regelstäbe nicht hinein gefahren und einfach geguckt, was passiert. Der Reaktor ist stehen geblieben, weiter nichts - einfach stehen geblieben. Es gab keine Überhitzungen, nichts ist durchgebrannt. Das ist doch hervorragend!

Wir brauchen keine Angst zu haben, daß irgendwelche Sicherheitssysteme versagen, der Reaktor bleibt von selbst stehen. Das heißt inhärent sicher, und das ist sicherlich in unserer Diskussion in Deutschland ein sehr wichtiges Argument.

Das andere ist dann alles schon zweitrangig. Dadurch, daß immer nur soviel Brennstoff hineinkommt, wie gerade gebraucht wird, also ein kontinuierlicher Zustrom an Kernbrennstoff besteht, läuft er auch immer unter gleichen Bedingungen.

Unsere Wasserreaktoren, die wir hier in Deutschland haben, die werden immer für ein bis zwei Jahre beladen und haben dann erst mal eine hohe Reaktivität, welche mit der Zeit langsam nachläßt. Durch die Regelstäbe muß man das ausgleichen. Das braucht man hier fast gar nicht. Der Kugelhaufenreaktor hat durch diesen negative Temperaturgradienten den Vorteil, daß er bei viel Wärmeabzug ein bißchen abkühlt und dadurch stärker reagiert, er stabilisiert sich also selbst.

Dann hat er noch zwei Nebeneffekte. Er kann Thorium verbrennen... Auch wenn wir das vielleicht jetzt nicht brauchen, es ist mindestens eine Option für später, und was in der Diskussion mit dem Iran z.B. vielleicht wichtig ist: Es verbrennt das Plutonium, was ein bißchen mit der Kernspaltung von Uran entsteht. Man kann also da drin nicht wie im Tschernobyl-Reaktor z. B. Plutonium züchten für Bomben; das kann man nicht. Wir können also den Iranern das Ding ruhig anvertrauen, die können gar kein Waffenplutonium damit machen.

Dann haben wir eine Menge technischer Vorteile - die einfache Konstruktion. Wir brauchen fast keine Sicherheitseinrichtungen. Kleine Einheiten halte ich auch für ganz wichtig, die Bauteile sind so groß, daß Sie die transportieren können. Einen 1300-Megawatt-Reaktor müssen Sie vor Ort bauen. Aber die Hochtemperaturreaktoren können Sie in der Fabrik bauen, in Serie, Sie können sie verschiffen und in Entwicklungsländer bringen, d. h., wir könnten einen prima Exportschlager daraus machen, das wäre wirklich wünschenswert.

Dann haben wir eben die hohen Temperaturen; die verbessern den Wärmewirkungsgrad der Kraftmaschinen - sprich Dampfturbine oder Heliumturbine. Je höher die Innentemperatur im Vergleich zur Außentemperatur ist, um so größer ist der Wirkungsgrad, das ist auch so ein physikalisches Gesetz.

Und wir können mit der erhöhten Temperatur viele chemische Prozesse machen, wir können Kohle vergasen, wir könne Meerwasser entsalzen, in der ganzen Grundstoffchemie braucht man Wärme - siehe Mohs.

Das sind also alles große Vorteile, und was auch schon in der Entwicklung ist, ist die Heliumturbine. Man braucht dann nicht mal mehr eine Dampfturbine, man hat einfach eine Gasturbine - so ähnlich wir ein Flugzeugturbine -, die mit dem heißen Helium betrieben wird. Die muß natürlich auch erst richtig entwickelt sein. Aber so etwas ist dann, wenn man das mal richtig ausgetüftelt hat, eine bessere Maschine und viel weniger aufwendig als die vielen Stufen in den Dampfturbinen.

Wie gesagt, meine letzter Satz ist eigentlich der, den ich schon zwischendurch gemacht habe: Wenn Sie das alles nicht glauben, dann machen Sie sich selber schlau, man kann das wirklich alles nachlesen. Ich danke für Ihr Interesse.


Anmerkungen

1. Heinrich Duepmann, „Warum uns die erneuerbaren Energiequellen ruinieren“, Neue Solidarität 15/2010.

2. Hubert Mohs, „Was spricht für die Kernenergie?“, Neue Solidarität 10/2010.

Lesen Sie hierzu bitte auch:
Warum uns die erneuerbaren Energiequellen ruinieren
- Neue Solidarität 15/2010
Was spricht für die Kernenergie?
- Neue Solidarität 10/2010
Gedanken zur Kernenergienutzung
- Neue Solidarität Nr. 15/1997
Kernthema: Kernenergie
- Neue Solidarität online